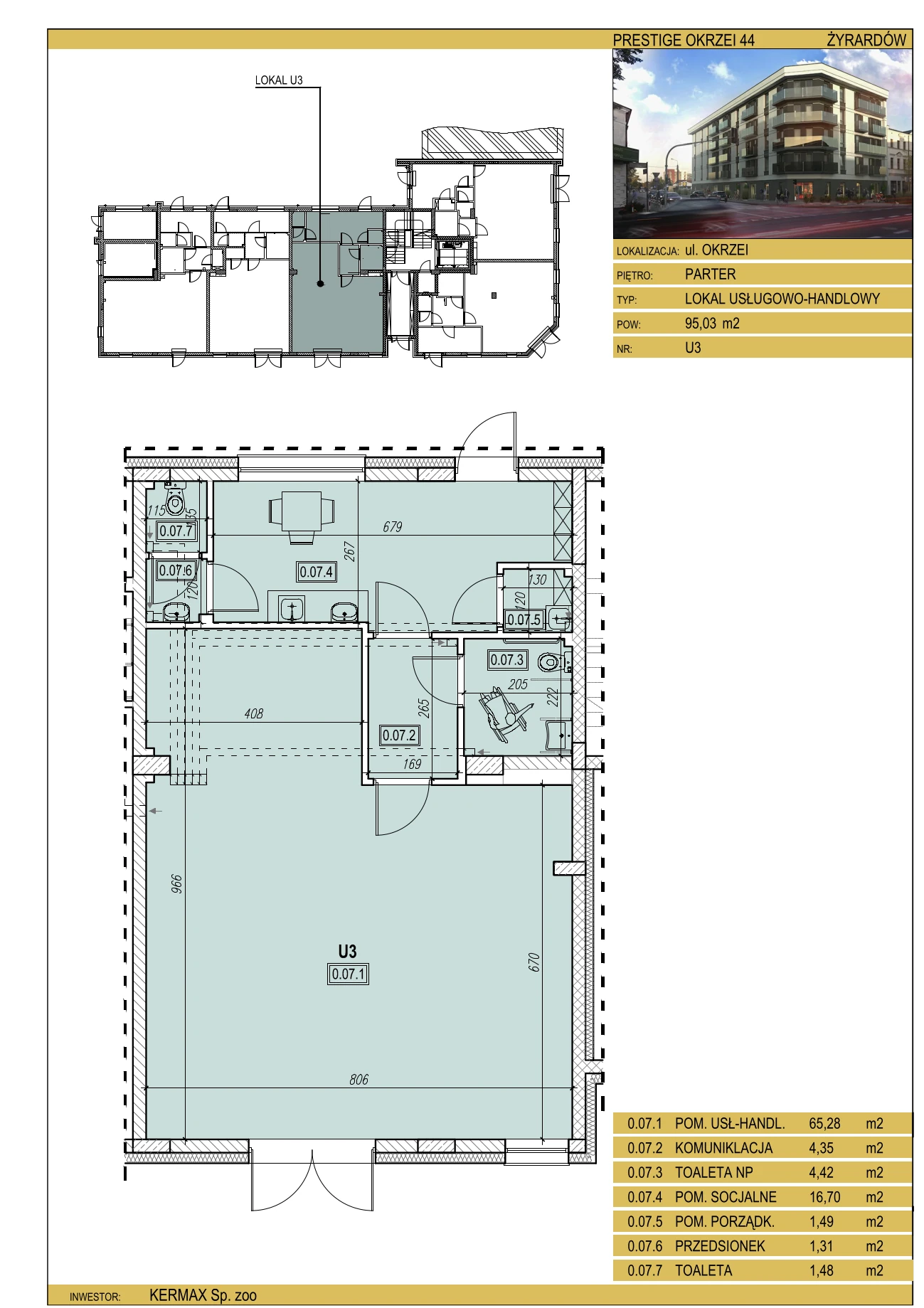
Lokal usługowy nr 3

  • 95,03 m²
  • Beds: 2 pomieszczenia
  • Sq Ft: U-3
Wizualizacja lokal usługowo handlowy nr 3

Opis lokalu

Lokal usługowy nr 3 o powierzchni łącznej 95,03 m².

Zadaj pytanie przez formularz

  • Metraż: 95,03 m²
  • Kondygnacja:
  • Liczba pokoi: 2 pomieszczenia
  • Nr lokalu: U-3
← Powrót do strony głównej