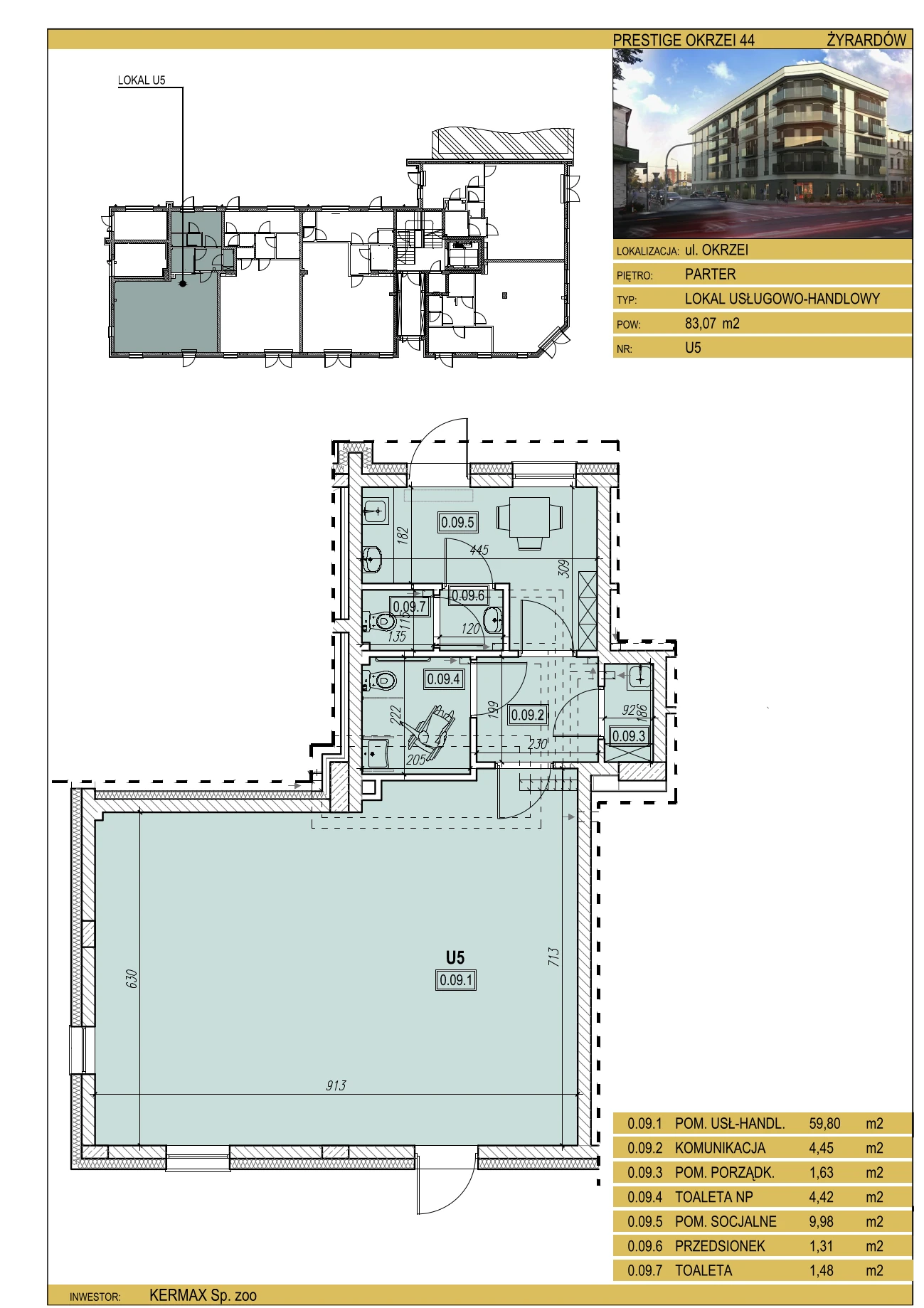
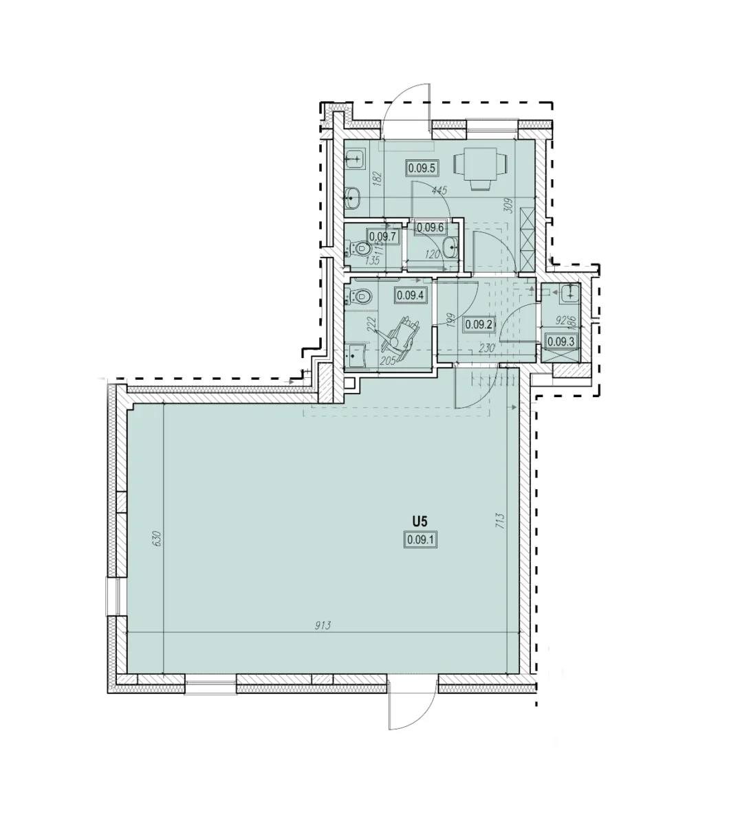
Lokal usługowy nr 5 83,07 m² Beds: 2 pomieszczeniaSq Ft: U-5 Opis lokalu Lokal usługowy nr 5 o powierzchni łącznej 83,07 m². Karta lokalu Zadaj pytanie przez formularz Imię: * Email: * Telefon: Wiadomość: Metraż: 83,07 m² Kondygnacja: ParterLiczba pokoi: 2 pomieszczeniaNr lokalu: U-5 Opis lokalu Karta lokalu Zadaj pytanie ← Powrót do strony głównej